EDIFICIO ADMINISTRATIVO SAN CAETANO

Santiago de Compostela

Volver
EDIFICIO ADMINISTRATIVO SAN CAETANO - imagen 1

El objetivo es crear un edificio que represente a las instituciones que sirven a la ciudadanía y que permita crear zonas cómodas de trabajo para sus usuarios. La verticalidad del conjunto dará ese carácter fuerte y unitario que representa los poderes de la democracia y nos representa como sociedad.

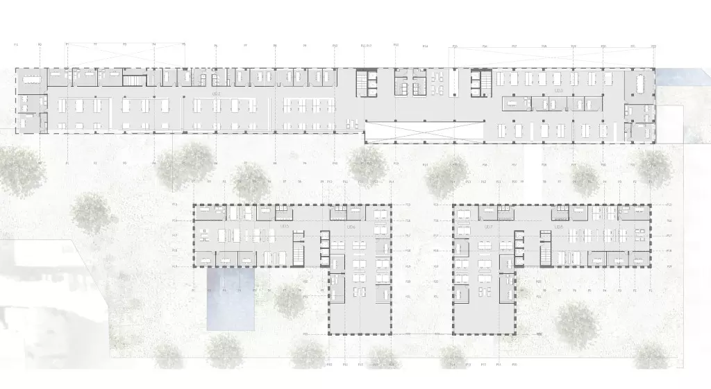
La propuesta potencia la relación del edificio con su entorno más inmediato. Como actuación previa, la demolición del hangar de autobuses y del edificio del parque de bomberos. Posteriormente, la rehabilitación del edificio existente de la estación de autobuses y la construcción de cuatro módulos de oficinas. Situamos una guardería para 75 niños en el sur-sureste del edificio, con un acceso agradable pero protegido. El archivo y el parking se sitúan bajo los módulos con patios para iluminarlos y ventilarlos. Sobre ellos se crea un espacio vacío con una zona verde entre el edificio antiguo y los nuevos.

Anterior Siguiente